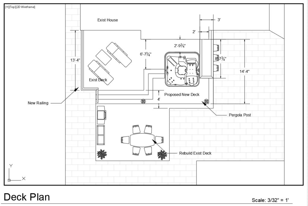
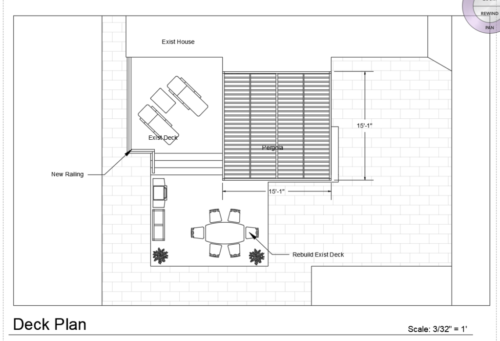
2024/05/20 DeckPergolaWhole Backyard

The homeowners had two existing decks and a paved patio, and wanted to add a jacuzzi with a pergola overhead. We integrated everything into a seamless multi-level design that connects all outdoor living areas smoothly.

Contact Us

Location

We are located in Toronto, serving customers across the GTA, Lake Simcoe, and the Niagara region.

Contact

Email: ykwoodworking@gmail.com

Phone: +1 (647) 909 7030

WeChat:

WeChat QR Code
First
Last